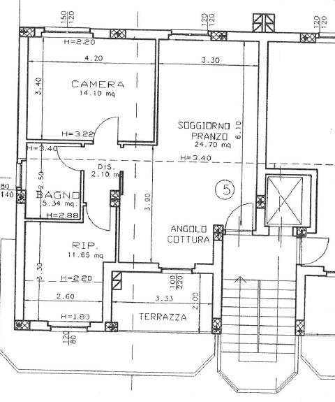
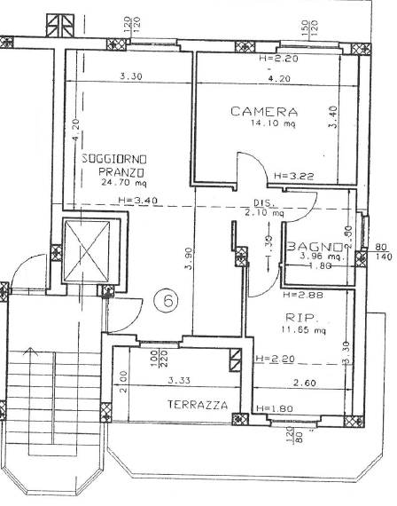
Appartamento A Pergola sub 13 garage 5 abbinati
Vendesi appartamento composto da ingresso soggiorno, con angolo cottura, due camere con parquet, bagno, balcone. richiesta € 80.000,00 + iva, libero subito.
Eventuale garage di pertinenza € 8.000,00 + iva
Appartamento tutto nuovo e mai abitato, secondo piano con ascensore.
Ubicato in Via Fratelli Rosselli, Pergola.

info_ 0721 455625
via Sirolo 24,61122 Pesaro (PU) -Tel: 0721 455625 – latorre.spa@legalmail.it








