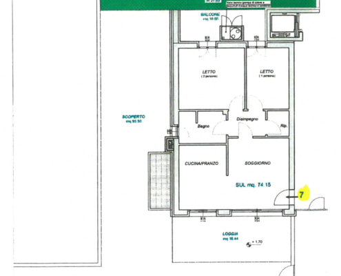
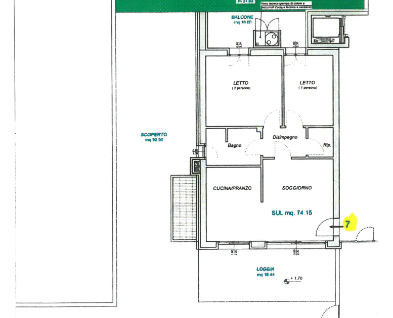
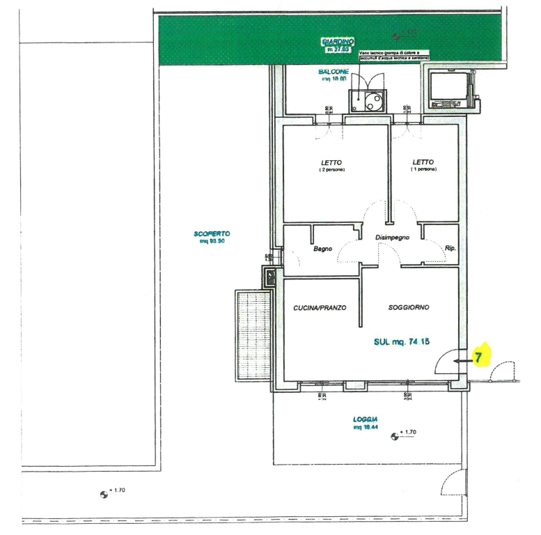
Dettaglio Appartamento 7 Palazzina 3 ( Sassonia Fano)
Appartamento di 74,15 mq commerciali :
Appartamento MQ 74,15
Scoperto piastrellato MQ 120,00
Verde MQ 30,00
L’immobile si compone da ingresso-soggiorno, cucina con ampia loggia sul davanti vista mare/piscina, disimpegno, un bagno finestrato, un ripostiglio, due camere da letto con balcone sul retro. L’intera unità si avvale di scoperto piastrellato e aria di verde.
Sarà possibile acquistare, a parte, garage, posti auto e cantine al piano interrato.

info_ 0721 455625
via Sirolo 24,61122 Pesaro (PU) -Tel: 0721 455625 – Fax: 0721 404575 – info@edilgrupposrl.it
Palazzina 3
Descrizione
Il cantiere, sito in una posizione molto comoda, sorge letteralmente a due passi dal mare e con 7 minuti a piedi si arriva direttamente al centro di Fano.
Il complesso residenziale La Sassonia si compone in totale di 5 palazzine, le prime due sono già state realizzate e sono già interamente abitate, le ultime tre palazzine fanno parte del complesso residenziale che sarà completato con una piscina ad uso condominiale.
La prima palazzina ed essere costruita sarà quella identificata con il numero 3 e gli appartamenti saranno dotati di cappotto esterno con parete ventilata, riscaldamento a pavimento, predisposizione per aria condizionata, piano di cottura a induzione secondo le nuove normative, vista mare sin dal piano terra rialzato, dotato di vani scala con rispettivo ascensore, utenze autonome di acqua e luce.
Le finiture dei singoli appartamenti sono a scelta del cliente e personalizzabili.
Classe energetica A a basso consumo energetico.
I prezzi degli appartamenti partono da €3.000,00 al mq al piano terra.
Sarà possibile acquistare garage e cantine al piano interrato e al prezzo di € 1.500,00 / al mq separatamente.














