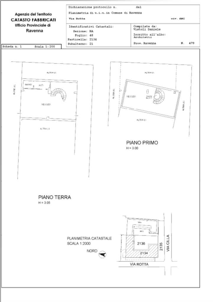
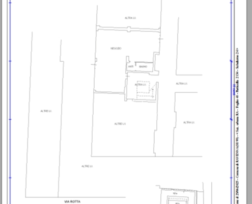
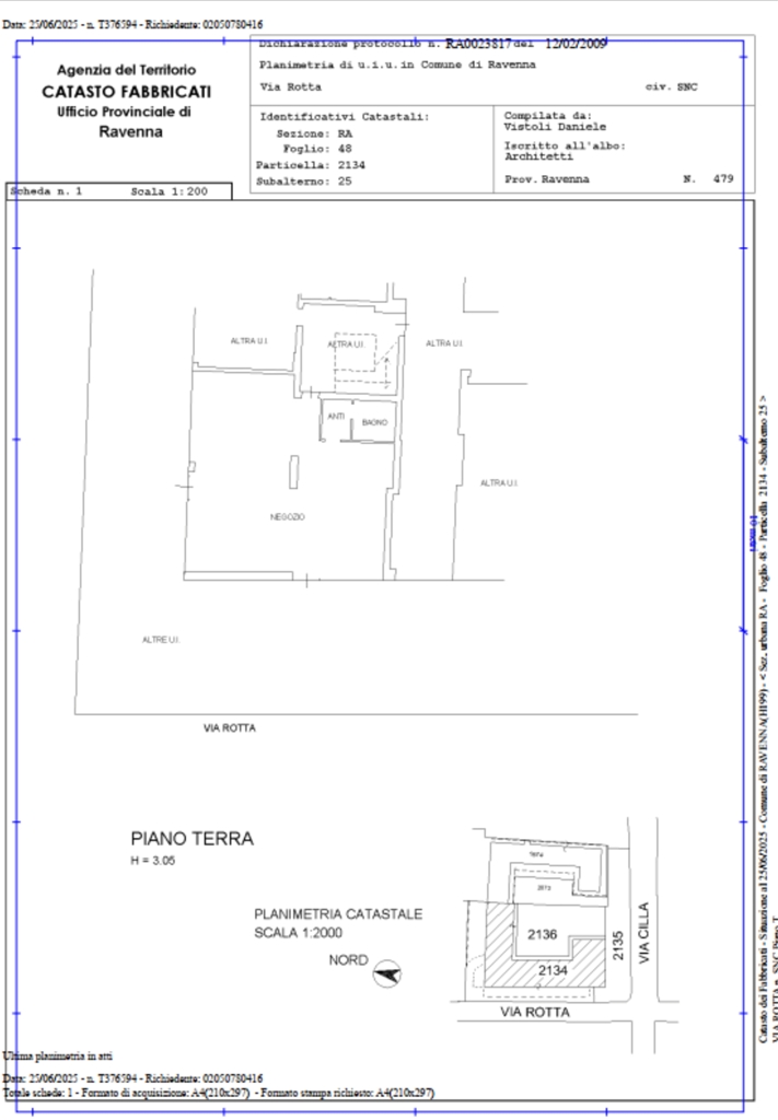
COMPLESSO COMMERCIALE

VIA CILLA/VIA ROTTA – ZONA CENTRO – RAVENNA